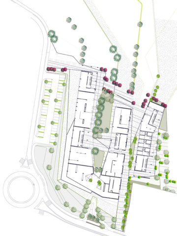
Housing sociale a Milano
Concorso di progettazione AAA Architetti cercasi
progetto segnalato
Progetto: Mariella Annese, Milena Farina (factory architettura), Andrea Calò, Marinella Rauso, Nilda Tripicchio
Committente: Confcooperative – Federabitazione Lombardia, LegaCoop Abitanti Lombardia, Euromilano
Programma: Housing sociale, servizi per la residenza
Luogo: Milano, Cascina Merlata
Cronologia: 2010
DimensionI: 19.523 mq (Slp)
Costo: 31.000.000 €







